
洋光台のリノベーション
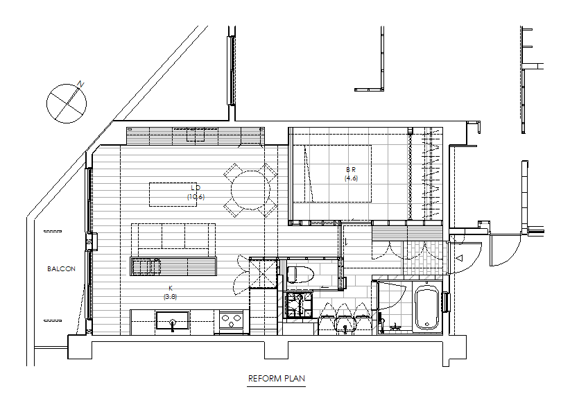
以前にリノベーションの設計をした住戸(設計者の私自身が住んでいた「20・08」)の隣の部屋にお住まいの御夫婦からの依頼による築45年ほどのマンションのスケルトンリフォーム。専用面積が50平米弱のDK+6畳和室x2室、そのうち1室は窓がない部屋で納戸として使われていた部分を寝室として1LDKの間取りへと変更している。寝室部分への日照と通風を取り入れるために広くなったLDKと寝室とは完全には仕切らずに開口にてつながっている。また以前のトイレや洗面などが狭く使いにくかった水廻り部分も大きくレイアウトし直して、限られた面積の中でなるべく使いやすい間取りとしている。キッチンはシステムキッチンであるが以前のオープンなダイニングキッチンのように生活感があふれ出さないように対面カウンターを設け、多めの物品類が収納できるように木工事による造作家具による収納も確保した。内装は部屋の奥まで明るくできるように白いチャフウォールと明るめの木材のみでシンプルに仕上げている。
- 計画地
- 横浜市磯子区
- 用途
- 共同住宅の1住戸(改築)
- 主要構造
- 鉄筋コンクリート造
- 敷地面積
- 延べ面積
- 49.45㎡(住戸専用面積)
- 完成年月
- 2019年3月



















